Descrizione

Nel cuore di Bovisio-Masciago, in una posizione strategica che consente di avere tutti i principali servizi a portata di mano e a pochi passi dalla stazione ferroviaria, proponiamo in vendita:
- Appartamenti bilocali, trilocali o quadrilocali dotati di giardini privati o ampi terrazzi per godere al meglio degli spazi esterni.
- 2 Attici esclusivi di quattro locali, con terrazzi panoramici, che possono trasformarsi in un SUPERATTICO occupante l'intero quarto e ultimo piano.

Questi appartamenti fanno parte di una palazzina signorile di prossima realizzazione, composta da 14 unità abitative, con consegna prevista per fine 2026.
La palazzina è stata progettata con un occhio attento al design moderno e al comfort abitativo.

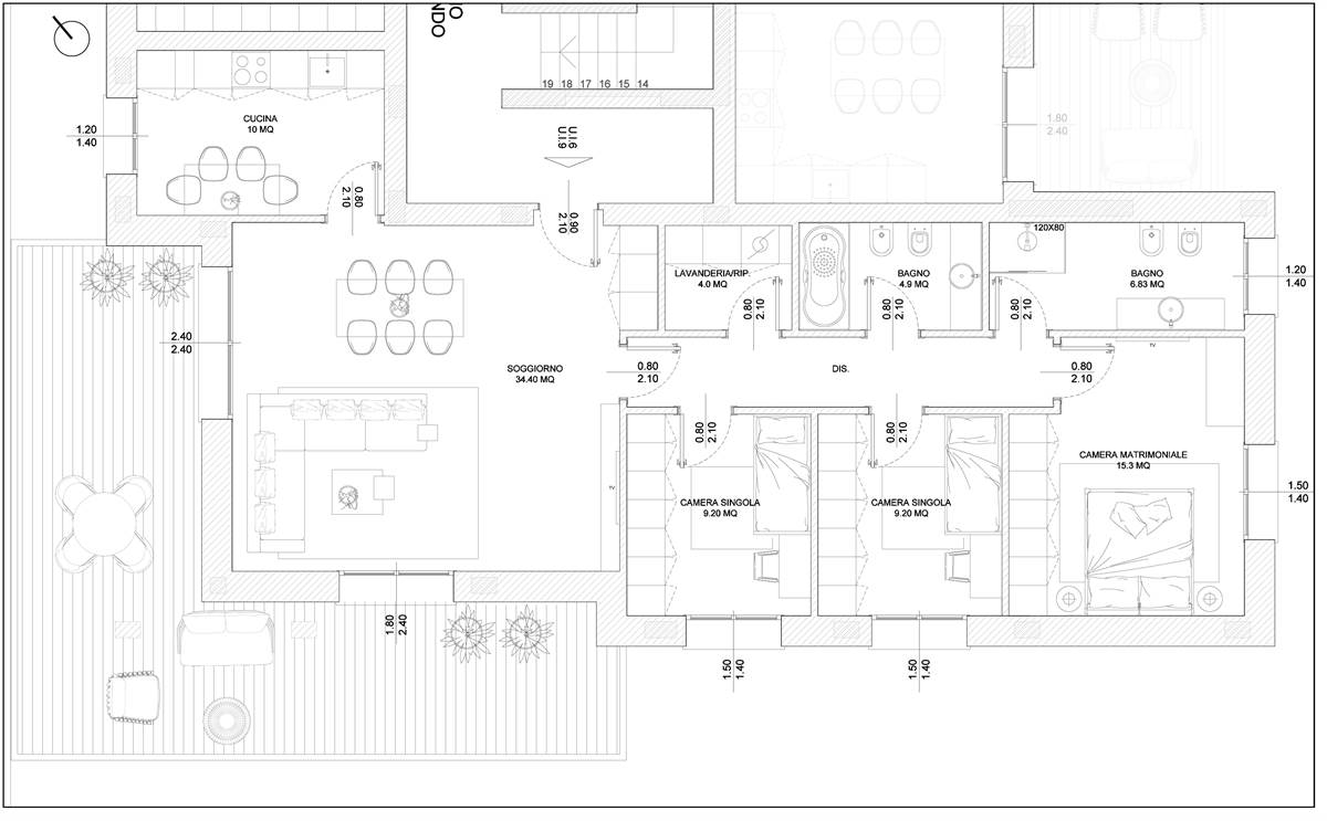
La soluzione in oggetto è un appartamento quadrilocale di 126 mq con terrazzo, posizionato al 2° piano.
Internamente, l'appartamento dispone di un ingresso che si apre sul soggiorno, una cucina abitabile, un disimpegno, doppi servizi, locale ripostiglio/lavanderia, una camera da letto matrimoniale e due camerette. La zona giorno si affaccia sull'ampio terrazzo di 41 mq.
Cantina inclusa e possibilità box auto.

Caratteristiche e finiture di alta qualità:
- Riscaldamento a pavimento con pannelli radianti, per un comfort termico senza pari.
- Impianto fotovoltaico centralizzato, per un'energia efficiente e sostenibile.
- Predisposizione per ventilazione meccanica controllata (VMC), aria condizionata e impianto antifurto.
- Classe energetica di alta prestazione, per un significativo risparmio sui consumi.

Non perdere l'opportunità di vivere in un contesto esclusivo, dove comfort e modernità si uniscono in perfetta armonia!
Contattaci per maggiori informazioni e per prenotare una visita in agenzia.


Caratteristiche principali

Stato Immobile
Prossima Realizzazione
Grado
Signorile
Orientamento
Est Sud Ovest
Lati Liberi
3
Giardino
Privato
Arredi
Non Arredato
Tipo Cucina
Abitabile
Riscaldamento
Centralizzato
Tipo Riscaldam.
Pompa di Calore
Tipo Impianto
Pavimento
Acqua Calda
Centralizzata
Raffrescamento
Pavimento
Infissi
PVC Doppio Vetro
Serramenti
Nuovo
Persiana
Tapparella Metallo
Pavim. Giorno
Gres Porcellanato
Pavim. Notte
Gres Porcellanato
Pavim. Cucina
Gres Porcellanato
Pavim. Bagno
Gres Porcellanato

Richiedi informazioni

Invia
Cookie preference