Descrizione

A Cesano Maderno, in zona tranquilla ma comoda con tutti i servizi e a pochi passi dal confine con Seveso, proponiamo in vendita un appartamento trilocale posto al piano rialzato di una villa bifamiliare. La soluzione è caratterizzata da ingresso pedonale e carraio completamente indipendente, giardino privato e nessuna spesa condominiale.
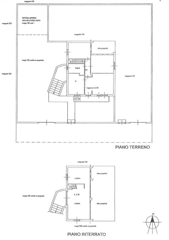
L’appartamento si sviluppa su un unico livello di 110 mq e comprende: ingresso con balcone, soggiorno, cucina abitabile, disimpegno, due camere da letto matrimoniali e bagno.
La proprietà è arricchita da un ampio giardino ad uso esclusivo di circa 300 mq, ideale per momenti di relax. E' inoltre presente un
posto auto doppio in larghezza, coperto e chiuso da basculante.
Al piano seminterrato troviamo una grande cantina di 50 mq, completa di locale lavanderia e ripostiglio, con accesso indipendente dall'esterno o tramite scala interna. Uno spazio versatile, ideale come taverna, locale hobby o deposito.
L’abitazione è stata ristrutturata circa quindici anni fa ed è dotata di infissi in alluminio con doppio vetro, riscaldamento autonomo con caldaia di recente installazione e caloriferi, aria condizionata nella zona giorno e nelle camere, impianto d'allarme e tenda da sole.
La posizione è comoda con la stazione di Cesano Maderno, raggiungibile a piedi in circa quindici minuti.
Contattaci subito per maggiori informazioni o per fissare una visita! Un’opportunità ideale per chi cerca indipendenza, spazi verdi e comodità.


Caratteristiche principali

Stato Immobile
Ristrutturato
Orientamento
Sud Ovest
Lati Liberi
2
Giardino
Privato
Arredi
Non Arredato
Tipo Cucina
Abitabile
Riscaldamento
Autonomo
Tipo Riscaldam.
Caldaia
Tipo Impianto
Radiatori
Fonte Energetica
Metano
Acqua Calda
Autonoma
Infissi
Alluminio Doppio Vetro
Serramenti
Ottimo
Persiana
Tapparella PVC
Pavim. Giorno
Gres Porcellanato
Pavim. Notte
Gres Porcellanato
Pavim. Cucina
Gres Porcellanato
Pavim. Bagno
Ceramica
Accesso Disabili
No

Mappa

Via Luigi Pacinotti , Cesano Maderno (MB)

Richiedi informazioni

Invia
Cookie preference