Descrizione

A Cesano Maderno, a due passi dal centro e a soli 450 metri dalla stazione ferroviaria, proponiamo in vendita esclusivi nuovi appartamenti all’interno di una moderna residenza di ultima generazione.
La palazzina, di imminente realizzazione e composta da 4 piani fuori terra con 10 unità abitative, sarà pronta per l’estate 2026.
Classe energetica A4, questa residenza coniuga efficienza energetica, sostenibilità ambientale e massimo comfort, offrendo un’occasione imperdibile per vivere in una zona ben servita, vicino a scuole, trasporti pubblici, poste e parchi.
.
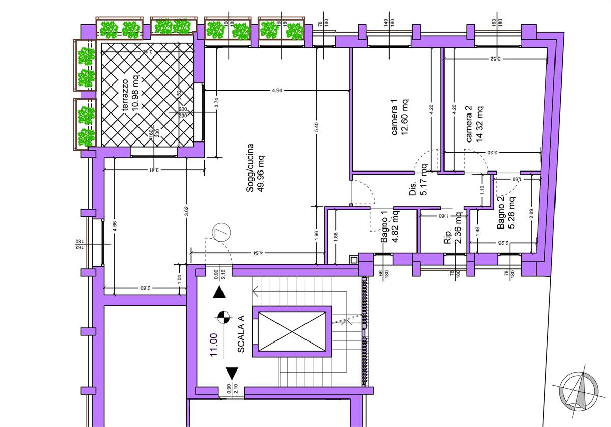
L’unità abitativa proposta, è un prestigioso trilocale di 95 mq calpestabili, situato al terzo e ultimo piano, arricchito da un esclusivo terrazzo panoramico di 53 mq, collocato in posizione dominante sulla copertura.
L’ingresso si apre sulla zona giorno, articolata in un ampio e luminoso soggiorno, una cucina separata e un terrazzo coperto di 13 mq, ideale per vivere momenti all’aperto.
La zona notte comprende 2 camere da letto, doppi servizi e un comodo ripostiglio.
Dal terrazzo della zona giorno si accede al piano superiore, dove una splendida terrazza panoramica ad uso esclusivo permette di godere di momenti di relax.
La proprietà è completata da una cantina, con la possibilità di acquistare un box auto o un posto auto.
.
Le finiture e le caratteristiche di alta qualità comprendono:
• Impianto fotovoltaico centralizzato per un'energia efficiente e sostenibile.
• Impianti autonomi per ogni unità abitativa.
• Sistema di climatizzazione estiva e invernale dei vari ambienti tramite l’utilizzo di un sistema ad aria, con unità interne ad espansione diretta.
• Sistema di gestione controllabile sia in locale che da remoto tramite apposita App.
• Classe energetica di alta prestazione, senza utilizzo di gas metano, garantendo un notevole risparmio sui consumi.
Contattaci per ulteriori informazioni e per prenotare un appuntamento in agenzia!


Caratteristiche principali

Stato Immobile
Prossima Realizzazione
Grado
Signorile
Orientamento
Nord Ovest Sud Est
Lati Liberi
4
Giardino
No
Arredi
Non Arredato
Tipo Cucina
A Vista
Riscaldamento
Autonomo
Tipo Riscaldam.
Pompa di Calore
Tipo Impianto
Aria
Fonte Energetica
Fotovoltaico
Acqua Calda
Autonoma a Pannelli
Raffrescamento
Split
Infissi
Alluminio Doppio Vetro
Serramenti
Nuovo
Persiana
Tapparella Metallo

Mappa

Corso Libertà , Cesano Maderno (MB)

Video

Richiedi informazioni

Invia
Cookie preference