Descrizione

A Cesano Maderno - Molinello, in tranquilla zona residenziale proponiamo in vendita un’elegante porzione di villa bifamiliare completamente ristrutturata nel 2013 con finiture di alto livello e in classe energetica A1.
La proprietà è dotata di area esterna privata e di una dépendance indipendente, ideale per molteplici utilizzi.
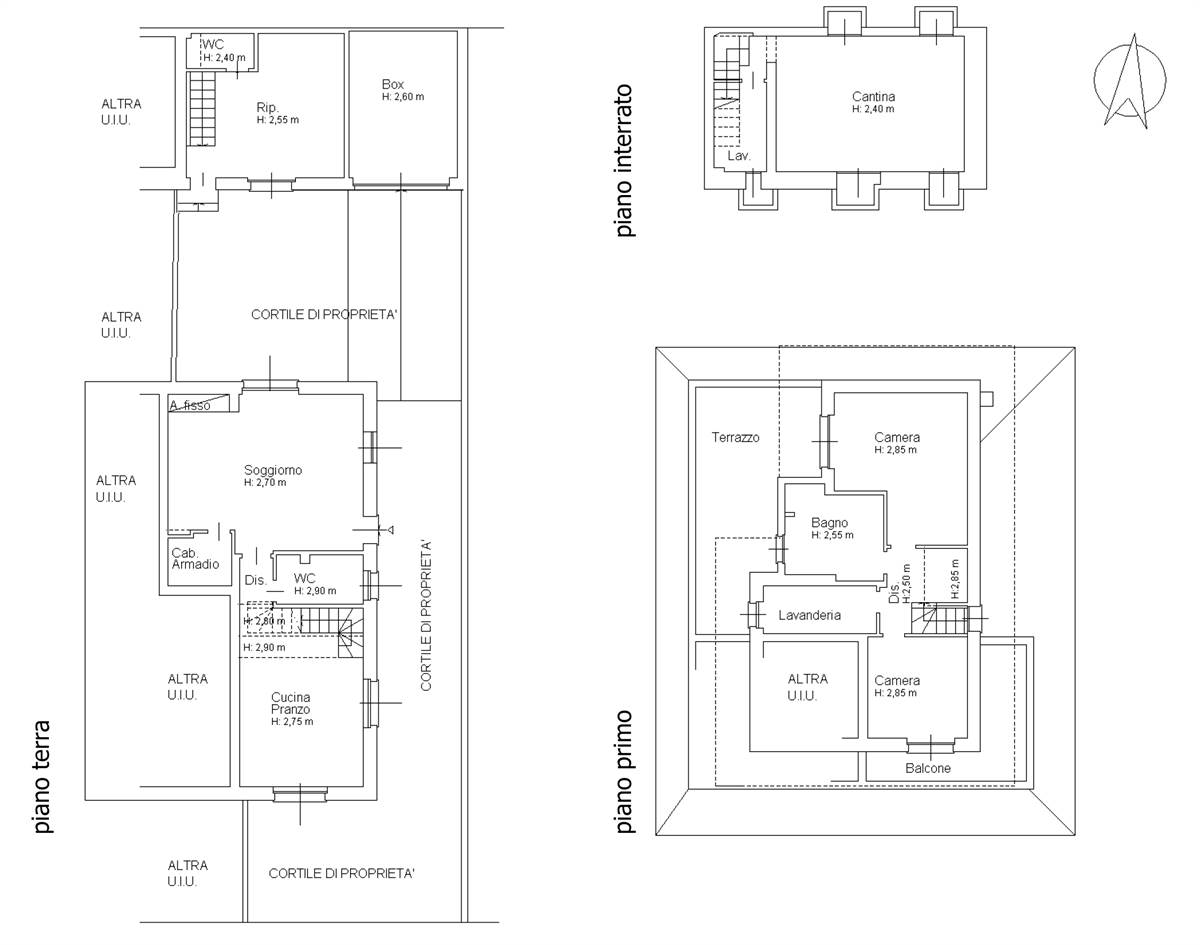
La villa si sviluppa su due livelli e si distingue per ambienti ampi, luminosi e curati nei dettagli.
Al piano terra, di circa 60 mq, si trova una raffinata zona giorno con stufa a legna in maiolica, un pratico ripostiglio attrezzato a guardaroba, una cucina abitabile di generose dimensioni e un bagno. Gli ambienti affacciano direttamente sull’area esterna.
La zona notte, situata al primo piano, comprende una camera matrimoniale con accesso a un terrazzo di 23 mq, una spaziosa cameretta con balcone, un ampio bagno e un locale lavanderia.
In corpo staccato e completamente indipendente si trova la DEPENDANCE di 54 mq, composta da un locale con bagno al piano terra e da un ulteriore ambiente con lavanderia al piano interrato. Perfetta come studio professionale, locale hobby o seconda abitazione, offre massima versatilità d’uso.
L’area esterna, piastrellata e ben curata, si estende su tre lati della proprietà per un totale di circa 150 mq.
Completa la soluzione un box auto con basculante automatizzata in doghe di alluminio.
La villa è stata oggetto di una ristrutturazione totale, che ha interessato impianti idrici e sanitari, impianto elettrico, serramenti, facciata, cortile interno e pluviali .
DOTAZIONI e COMFORT:
→ cancello carraio automatico in acciaio inox e vetro
→ serramenti in legno/alluminio con vetro antisfondamento e zanzariere
→ tapparelle elettriche in alluminio
→ videocitofono e porte blindate
→ sistema d’allarme su tutti i serramenti con sensori a tendina e videosorveglianza
→ condizionatori Daikin
→ caldaia a condensazione esterna
→ vespaio e cappotto perimetrale con isolamento totale del tetto
→ illuminazione perimetrale di tutta la casa a LED controllata da sensore crepuscolare.
Soluzione esclusiva, pronta da abitare, ideale per chi cerca una casa moderna, efficiente e accogliente in un contesto residenziale elegante e ben servito.


Caratteristiche principali

Stato Immobile
Ottimo
Grado
Signorile
Orientamento
Nord Est Sud
Lati Liberi
3
Giardino
Privato
Tipo Cucina
Abitabile
Riscaldamento
Autonomo
Tipo Riscaldam.
Caldaia a Condensazione
Tipo Impianto
Radiatori
Fonte Energetica
Metano
Acqua Calda
Autonoma
Raffrescamento
Split
Infissi
Personalizzato
Serramenti
Ottimo
Persiana
Tapparella Metallo
Pavim. Giorno
Gres Porcellanato
Pavim. Notte
Parquet
Pavim. Cucina
Gres Porcellanato
Pavim. Bagno
Gres Porcellanato
Isolamento
Presente
Isolamento termico
Cappotto esterno
Destinato a residenti
Si

Mappa

Via Rubicone , Cesano Maderno (MB)

Richiedi informazioni

Invia
Cookie preference