Descrizione

In Seveso Altopiano, all’interno di un elegante residence composto da sole quattro unità, proponiamo in vendita una villa a schiera centrale edificata nel 2003 e caratterizzata dalla raffinata facciata in mattoni a vista.
L’abitazione si sviluppa su tre livelli e offre ambienti luminosi, ben distribuiti e mantenuti con grande cura.
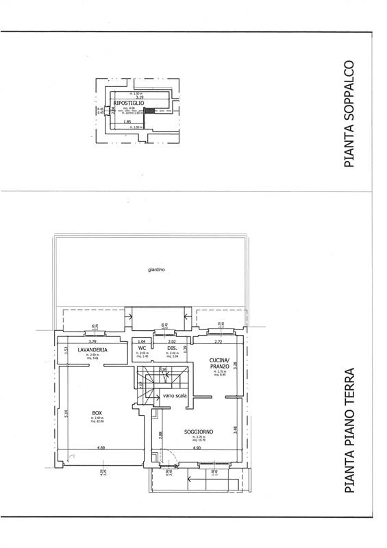
L'ingresso al piano terra apre su un accogliente soggiorno, seguito dalla cucina abitabile e da un comodo bagno di servizio. Dal disimpegno si accede all’area esterna di 60 mq, collocata sul retro della casa e caratterizzata da un’esposizione a sud che garantisce ottima luminosità.
Il primo piano, completamente agibile e abitabile, ospita la zona notte composta da una camera matrimoniale con cabina armadio e bagno privato, una seconda camera matrimoniale, una cameretta dotata di balcone e un ulteriore bagno.
Sul vano scala è stato ricavato un piccolo soppalco, perfetto come angolo studio.
Il piano interrato ospita una taverna di 60 mq: un ambiente ampio e versatile, arricchito da un camino e da una cucina in muratura, oltre a un bagno dedicato.
A completare la proprietà è presente un ampio box con accesso diretto dal piano terra.
La villa si presenta in ottime condizioni e viene venduta completa di arredi. Tra le dotazioni figurano pavimenti in parquet, serramenti in legno con doppio vetro e zanzariere, porta blindata, impianto d’allarme e riscaldamento autonomo.
Le spese condominiali sono estremamente contenute, pari a soli 150 € all’anno.
L’immobile si trova in zona Altopiano di Seveso, un contesto residenziale tranquillo e immerso nel verde, a pochi passi dal Parco delle Groane. La zona è caratterizzata da villette e piccole palazzine e offre tutti i principali servizi comodamente raggiungibili, rendendola ideale per chi desidera vivere in un ambiente sereno senza rinunciare alle comodità.


Caratteristiche principali

Stato Immobile
Ottimo
Grado
Signorile
Orientamento
Sud Nord
Lati Liberi
2
Giardino
Privato
Arredi
Arredato
Tipo Cucina
Abitabile
Riscaldamento
Autonomo
Tipo Riscaldam.
Caldaia
Tipo Impianto
Radiatori
Fonte Energetica
Gas
Acqua Calda
Autonoma
Infissi
Legno Doppio Vetro
Serramenti
Buono
Persiana
Persiana Legno
Pavim. Giorno
Parquet
Pavim. Notte
Parquet
Pavim. Cucina
Gres Porcellanato
Pavim. Bagno
Gres Porcellanato
Destinato a residenti
Si

Mappa

via Feltre , Seveso (MB)

Video

Richiedi informazioni

Invia
Cookie preference