Descrizione

In una posizione strategica di Cesano Maderno, a pochi passi dal prestigioso Palazzo Arese Borromeo — uno dei luoghi storici più rappresentativi della città, immerso in un grande parco pubblico — sorge una nuova e raffinata palazzina residenziale progettata per offrire comfort, qualità costruttiva e un’estetica contemporanea. L’area è servita dai principali servizi e offre collegamenti rapidi verso la stazione e le direttrici principali, mantenendo al tempo stesso un’atmosfera tranquilla e residenziale.
.
Il progetto prevede un contesto esclusivo composto da sole 7 unità abitative distribuite su 4 piani fuori terra, con consegna prevista per luglio 2026. La palazzina si distingue per un’architettura moderna e lineare, impreziosita da una facciata in raffinato mattone faccia a vista bianco.
.
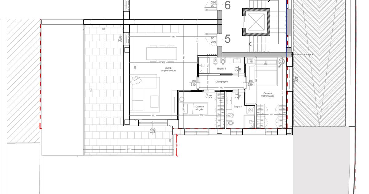
Il trilocale proposto si trova al secondo piano. L’ingresso si apre sul soggiorno con angolo cottura, con accesso diretto al terrazzo di 20 mq, uno spazio esterno vivibile e ben sfruttabile. La zona notte comprende due camere da letto e doppi servizi.
-
La costruzione è progettata secondo criteri di efficienza e comfort, con classe energetica A3. Tra le principali caratteristiche:
• Ascensore
• Impianto fotovoltaico condominiale
• Riscaldamento autonomo a pavimento con pompa di calore ad alta efficienza
• Serramenti in PVC con tapparelle in alluminio motorizzate
• Predisposizione per impianto di climatizzazione e antifurto
• Videocitofono
• Ventilazione Meccanica Controllata (VMC) su richiesta
• Edificio privo di fornitura gas, per una gestione più sicura e sostenibile
.
Sono disponibili diverse tipologie di appartamenti, adatte a esigenze abitative differenti.
Possibilità di box singoli o doppi (a partire da € 20.000, prezzo a parte). Cantina inclusa.
Un progetto moderno e curato, pensato per offrire comfort, efficienza energetica e qualità costruttiva in una delle zone più comode della città.


Caratteristiche principali

Stato Immobile
In Costruzione
Lati Liberi
3
Giardino
No
Arredi
Non Arredato
Tipo Cucina
Angolo Cottura
Riscaldamento
Autonomo
Tipo Riscaldam.
Pompa di Calore
Tipo Impianto
Pavimento
Fonte Energetica
Fotovoltaico
Acqua Calda
Autonoma
Raffrescamento
Predisposizione
Infissi
PVC Doppio Vetro
Persiana
Tapparella Metallo
Destinato a residenti
Si

Mappa

Via Venezia , Cesano Maderno (MB)

Richiedi informazioni

Invia
Cookie preference